THE BEST EUROPEAN HOUSING SCHEMES OF THE 20th CENTURY
Abstract
This article is derived from the recently published book, Housing Atlas: Europe – 20th Century by Orsina Simona Pierini, Carmen Espegel, Dick van Gameren and Mark Swenarton (Lund Humphries, London, 2023). It is based on an introductory essay by Dick van Gameren, titled “Tradition and Innovation in Twentieth-Century European Housing Design”, exploring some of the key issues of 20th century urban design. Altogether, 87 housing projects are well researched and documented, within a comparative framework, in Housing Atlas including those discussed in this article.
About the Author
Dick van Gameren is Professor of Housing Design and Dean of the Faculty of Architecture and the Built Environment at Delft University of Technology, The Netherlands. He is an architect and Design & Research Partner with the internationally acclaimed Delft-based firm Mecanoo.
Contact: +31 15 27 88514 and D.E. van Gameren @tudelft.nl
Preface
This article by Dick van Gameren, submitted to Urban Design Review by Lund Humphries, publishers of the excellent Housing Atlas, makes an important contribution to the vexing problem of how to design residential environments well – delivering decent and affordable housing for different social groups within the urban and suburban fabric today. As the publishers point out, architects and urban designers are revisiting the European housing schemes of the 20th century, such as those shown in the Housing Atlas, as they seek answers to the current housing crisis which is of global proportions. Australia and the US in particular can learn from the examples and arguments put forth.
Raeburn Chapman, Editor, Urban Design Review.
Article

Cover of the book, HOUSING ATLAS: EUROPE – 20th CENTURY, courtesy of Lund Humphries.
The idea that the development of housing design in the last 100 years constitutes a linear and inevitable step in the evolution of architecture has since long made way for a much more nuanced and layered perspective. The relationship between past, present and future is a complex one. Innovation and improvement can spring from a return to old practices, while clinging to an obsessive desire for innovation can just as easily lead to stagnation and loss of quality.

Hand-drawn perspective map of Hampstead Garden Suburb, from M.H. Baillie Scott et al., ‘Town Planning and Modern Architecture’ (Fisher Unwin, 1910).
A very interesting example of the way a project can combine traditional patterns and craftmanship with innovative and forward-looking ideals is Hampstead Garden Suburb, the opening project in this chronologically ordered atlas. This garden suburb in London might at first glance appear to be the re-creation of a village from the past; however, within its urban structure and typological variety many new ideas were introduced that one can see coming back in many of the other documented projects in the atlas. The figure of the ‘close’ introduced a new way of clustering row housing, starting not from the idea of linear repetition but from the intention to connect the private plot to collective and public green spaces – creating a complex, layered spatial layout. New typologies of apartment buildings for specific groups of residents, such as single women, were integrated in the project – appearing, however, in the example of Mackay Hugh Baillie Scott’s Waterlow Court of 1909, as a late medieval manor house with beautifully crafted traditional detailing. Barry Parker and Raymond Unwin’s idea of making a clear transition between private backyards and a large open (public) space, in this case an expanse of the Heath, by proposing a city wall with turrets used as garden sheds is as much forward as backward looking. They managed here to find a solution for an issue that the later 20th-century Modernists failed to address – as can be seen in the linear row-housing clusters of Vlashof and Klaverhof in Nagele, a post-war garden city on new polder land, which follow the idea of the close and its connection to a larger central green space but where the boundary between the private backyard and collective open space remains unresolved.

Papaverhof, The Hague, Netherlands, 1919, designed by Jan Wils. Typological Plan.
The design for the Papaverhof in The Hague shows a further development of the idea of the close. The inventive clustering of the houses minimised the size of the individual plots by deleting the traditional back garden of row houses – thus creating space for the large, green, collective central garden. The plans of the houses themselves are hardly innovative; their exterior appearance, however, was quite revolutionary. All references to traditional materials and building methods, so characteristic of Hampstead Garden Suburb, were avoided here; instead, the architect, Jan Wils, pursued a ‘new’ architecture by means of an abstract aesthetic expression based on the ideas of the artistic De Stijl movement.
In several early large-scale residential projects, one can see other balances between traditional patterns and innovative ideas. The Zaanhof was part of a masterplan for the Spaarndammerbuurt, an early 20th-century residential extension for the working class in Amsterdam West designed, along with Herman Walenkamp, by Joan van der Mey, protagonist of the Amsterdam School movement that produced iconic housing projects such as De Dageraad in Amsterdam South. For the Spaarndammerbuurt, Van der Mey proposed a radically new urban structure, abandoning the ubiquitous grid structure of the 19th-century European city. Large, irregularly shaped building blocks define a clearly differentiated system of streets, communal courtyards, and collective and private gardens. The housing itself followed traditional patterns of residential typologies and construction methods, but the narrow and long building blocks of 19th-century Amsterdam were transformed into ‘superblocks’, with a double ring of housing – the outer one facing the public streets, the inner ring surrounding a collective green space – that demonstrates a striking parallel with the contemporary suburban, or even anti-urban, idea of the garden city as seen in Hampstead Garden Suburb or the Papaverhof.
- Zaanhof, Amsterdam, Netherlands, 1915, designed by Joan van der Mey, Herman Walenkamp, Kuipers & Ingwersen. Typological Plan.
- Zaanhof, Amsterdam, Netherlands, 1915, designed by Joan van der Mey, Herman Walenkam, Kuipers & Ingwersen. Photo courtesy of Stadsarchief Amsterdam.
- Rabenhof, Vienna, Austria, 1925, designed by Herman Aichinger and Heinrich Schmid. Situation Plan.
- Rabenhof, Vienna, Austria, 1925, designed by Herman Aichinger and Heinrich Schmid. Photo from Die Wohnhausanlage der Gemeinde Wien auf dem Gelände der ehemaligen Krimskykaserne (Thalia, ca.1929).
The ideas expressed in the Zaanhof and other surrounding courtyard blocks within Van der Mey’s scheme were taken to an even more extreme expression in the Viennese superblocks, resulting from the municipal programme in the interbellum period to build affordable housing for the impoverished urban working class of Vienna. In the Rabenhof, the individual building block has been completely dissolved, becoming part of one continuous structure of meandering housing that defines an almost labyrinthine sequence of connected streets, squares, courtyards and gardens. Remarkably, this richly layered spatial differentiation is combined with a complete lack of differentiation in the housing. The 1100 units of the Rabenhof all follow the same basic typology of three two-room units around one staircase, only adapting to the irregular megastructure when unavoidable. More famous, but certainly less innovative from an urbanistic point of view, is the Karl Marx Hof, designed and built very shortly after the Rabenhof project. Here, the open form and sensitive anchoring in context of the Rabenhof is replaced by the very strong autonomous form of two very large, closed building blocks connected by a central part with giant open arches. The units themselves are identical to those of the Rabenhof, once more showing the clear disconnection between urban morphology and dwelling typology of the Viennese projects. The Italian critic Manfredo Tafuri considered the Viennese projects in his study Vienna Rossa, published in 1980, as embodying a conflict between technique, ideology and form – and as hopelessly regressive from a typological point of view.
- Karl Marx Hof, Vienna, Austria, 1926, designed by Karl Ehn. Situation Plan.
- Karl Marx Hof, Vienna, Austria, 1926, designed by Karl Ehn. Photo from Der Karl Marx-Hof die Wohnhausanlage der Gemeinde Wien auf der Hagenwiese in Heiligenstadt (Thalia, ca.1930).
The two main polarities that can be seen in these projects from before 1940 come back even more strongly in the post-Second World War period. First, should housing be considered as a means of creating an articulated urban structure of streets and other defined open spaces – in other words, should housing design follow and articulate a desired urban structure – or should the urban space be defined by the space left open between the housing structure, or again, in other words, should an open continuous space be considered as a point of departure to allow for a free positioning of any kind of housing figures? Second, should housing find a more individual, traditional expression, anchored to local context, or should it express the possibilities of new building techniques and the desire for a new and universal language to create better places for living than those of the past?
Two projects that take intriguing standpoints on the questions posed above are the Barbican in London and Borneo-Sporenburg in Amsterdam.
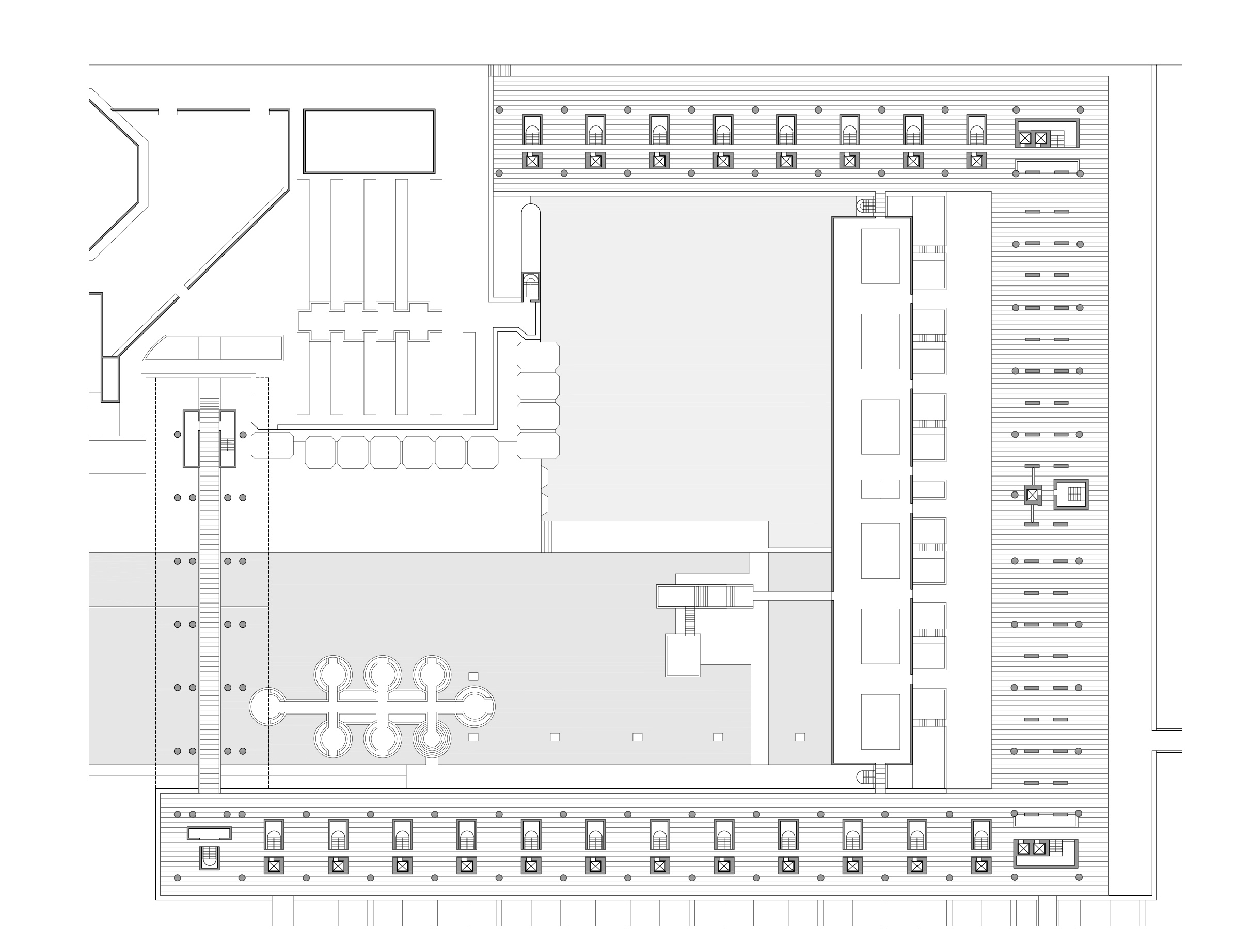
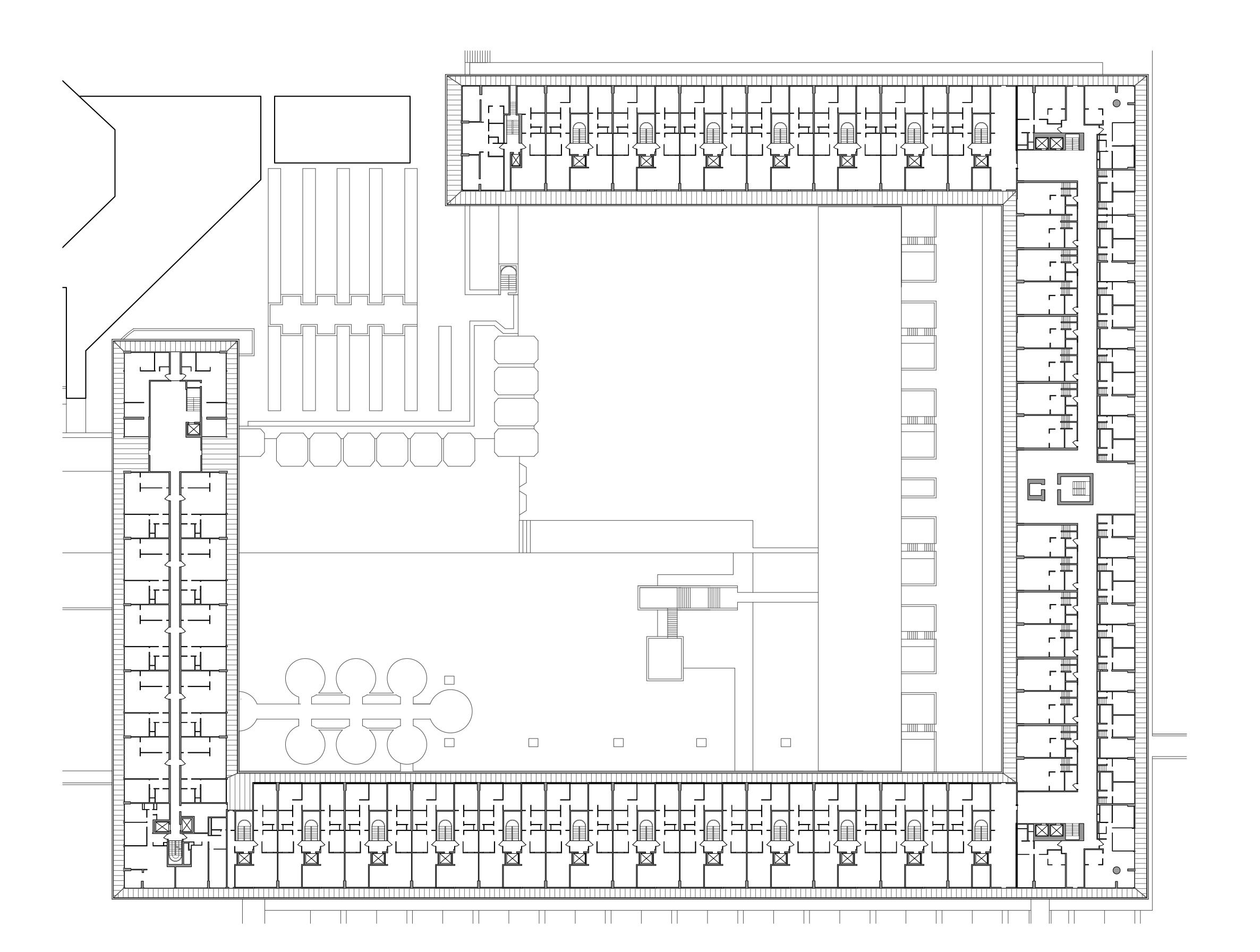
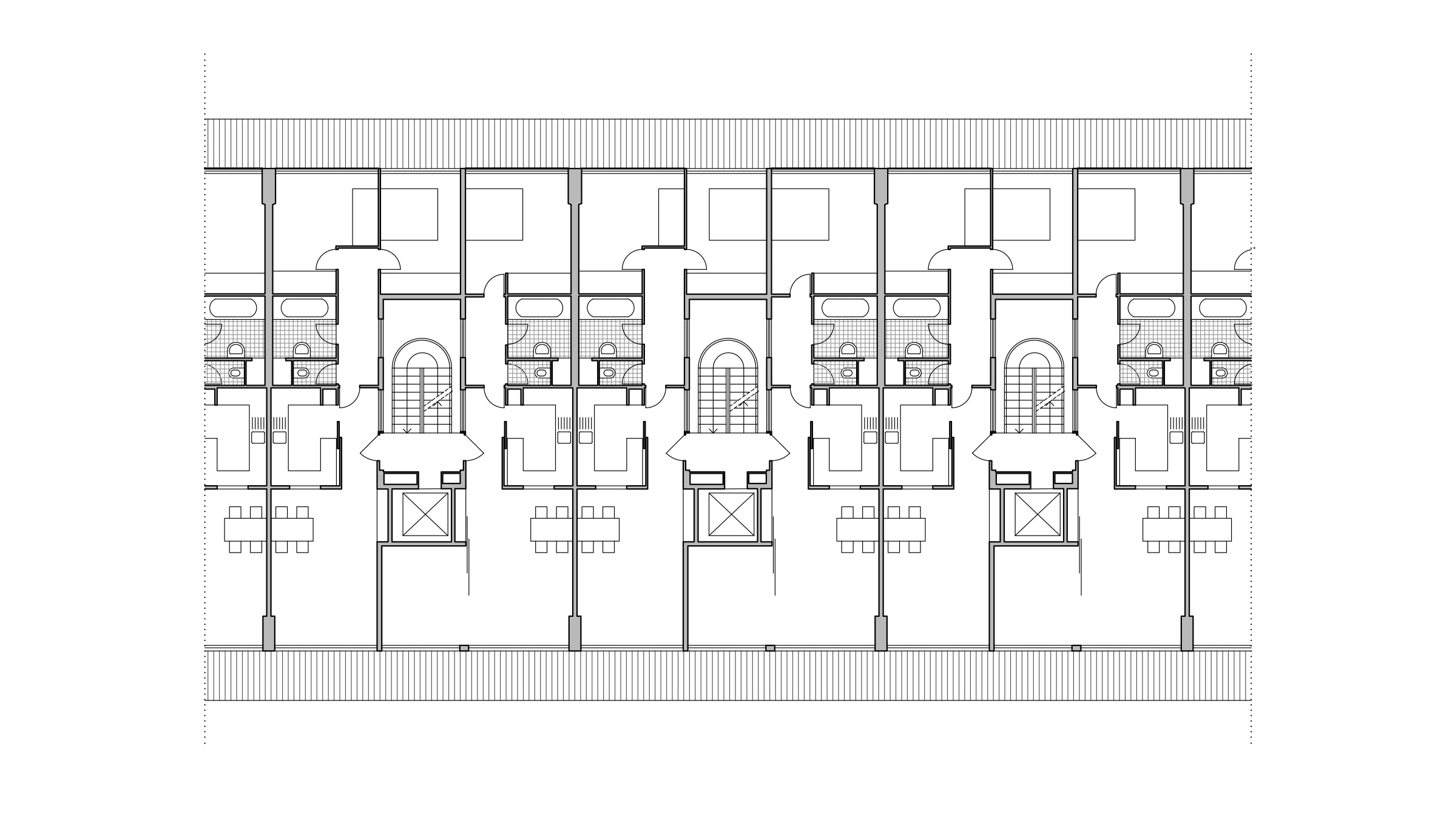
The diagram below is a “Situation Plan” showing the form of The Barbican in its urban context followed by a series of drawings which include plans and a section-elevation – designed by Chamberlin, Powell and Bonn:

- Barbican, London, UK, 1959, designed by Chamberlin, Powell and Bon. Section-elevation.
- Barbican, London, UK, 1959, designed by Chamberlin, Powell and Bon. Typical floor plan.
- Barbican, London, UK, 1959, designed by Chamberlin, Powell and Bon. Typological Plan.
- Barbican, London, UK, 1959, designed by Chamberlin, Powell and Bon. Typological Plan.
The Barbican development took more than 20 years to build. It created a huge housing megastructure in the heart of London. It has a strong consistency within itself but fails to connect to its surroundings, remaining an enclave of good intentions in a rather fragmented context. The design was severely criticised upon completion but has, 50 years later, withstood the test of time very well and is a desirable place to live. In the official document presenting their masterplan, the 1959 Barbican Report, the designers – Chamberlin, Powell and Bon – made explicit reference to traditional urban patterns and housing types of London. However, the megastructure of towers and slabs on pilotis on a raised pedestrian deck appears to be anything but traditional or ‘anchored’. The raised deck, a typical post-war architectural and urban concept, was explained by the architects as based on ideals presented by Leonardo da Vinci in his proposal for an ideal town, and in the 18th century by the Adam brothers in their then ‘revolutionary’ design for the Adelphi in London – a project that introduced the idea of an ensemble of terraced townhouses on a raised platform, with a network of covered roads, storage and workspaces underneath. The two references were illustrated with drawings taken from Hans Bernoulli’s 1946 study on modern town planning, ‘Die Stadt und ihr Boden’.
The Barbican development comprises more than 2000 dwelling units, allowing the designers to create not only an extreme variety of dwelling types but also a rich collection of collective open, green spaces that pierce upward from the earth through the raised deck. Innovative ideas on typologies, interior layouts and technical facilities are combined with patterns of squares and gardens, mews and terraces that characterise the London of previous centuries – a reference also indicated by the architects in the 1959 Barbican Report.
- Borneo-Sporenburg, De Whale, Amsterdam, Netherlands, 1995, Masterplan designed by West 8 and De Architekten Cie (Frits van Dongen). Situation Plan Drawing.
- Borneo Sporenburg, De Whale, Amsterdam, Netherlands, 1995. Photo courtesy of Dick van Gameren.
In a very different way, the Borneo-Sporenburg project in Amsterdam achieves the same combination of invention and tradition. Its dense pattern of three-storey-high closed perimeter blocks of individual townhouses recalls 17th-century Amsterdam, but at the same time required new typological interventions as the plots for the row houses were too small to accommodate a house, a parking place and a garden. Unlike the Barbican, which was designed by one single architectural firm, the housing of Borneo-Sporenburg has been built to the designs of dozens of architectural practices, finding its most extreme expression in one part where 60 townhouses were all designed individually. Considered an experiment, it nonetheless repeated the standard way of building houses in Dutch cities over many centuries. The ‘return’ to a fabric of townhouses in a new residential area was chosen to offer middle-class families an alternative within the boundaries of existing cities, as they were moving out of the city in large numbers to suburban housing in surrounding new towns. The experiment proved very successful in keeping families in the city, and was subsequently repeated in the new, much larger extension of IJburg.
This layout, with its compact clustering of townhouses, failed to achieve the required total number of units for the regeneration of the former Borneo- Sporenburg docks. Four large apartment buildings in courtyard or tower formats, one of them named De Whale, had to be inserted into the continuous fabric of townhouses. These buildings take on the role of the larger structures, such as churches and town halls, of the historic city, rising above the private houses that make up the rest of the city and creating points of orientation.
This once more confirms the strong basis of both projects in traditional patterns of house design and building: for the Barbican the repetitive, developer-built terraces of Georgian and Victorian London, and for Borneo-Sporenburg the individual, privately built canalside houses of 17th-century Amsterdam, punctuated by churches and public buildings. However strong these connections to past models, the Barbican, taking a position in the middle of the ‘Housing Atlas’’s chronological order, and Borneo-Sporenburg, at the end of the chronology, were considered from the start to be innovative and progressive – an observation that can be made, as argued above, of the first project in the atlas: Hampstead Garden Suburb.
Acknowledgements
As stated in the Abstract, this article is derived from the recently published book, Housing Atlas: Europe – 20th Century by Orsina Simona Pierini, Carmen Espegel, Dick van Gameren and Mark Swenarton (Lund Humphries, London, 2023):
Orsina Simona Pierini is Full Professor of Architecture and Urban Design at the Politecnico di Milano, Italy.
Carmen Espegel is Full Professor of Architectural Design at the Universidad Politécnica de Madrid, Spain.
Dick van Gameren is Dean of the Faculty of Architecture and the Built Environment at Delft University of Technology, The Netherlands.
Mark Swenarton is Emeritus Professor of Architecture at the University of Liverpool, UK.
All plans and drawings are courtesy of the authors.












